본문 바로가기

빈고게시판 공동체주택 설계 수정안

  • 지음
  • 작성일시 : 2016-02-04 14:23
  • 조회 : 5,976

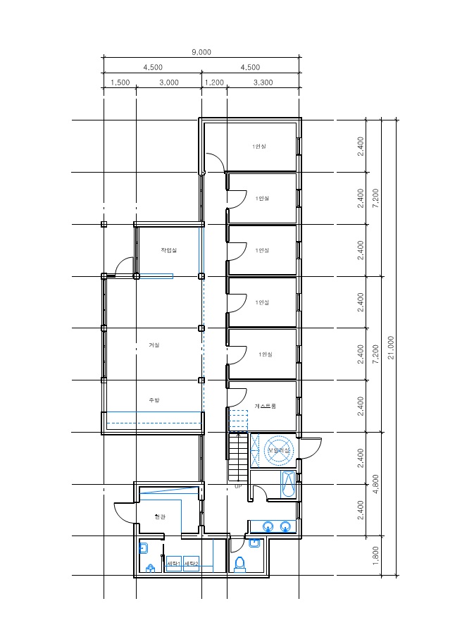
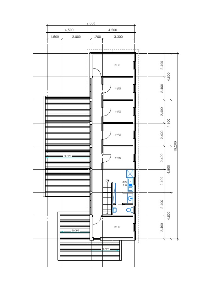
홍성 공동체주택 설계가 수정되었습니다. 

수정안은 빈고 조합원이자, 두리공간환경연구소에서 일하시는 겨리님이 수고를 많이 해주셨습니다. 

이 수정안을 기본으로 약간의 수정을 거친 후에 설 연휴 이후에 확정안이 만들어질 것 같습니다. 

 

<1층 평면도>

 

<2층 평면도>

  • 번호
    제목
    글쓴이
  • 502
    160315 01차 운영회의록
    빈고
    2016-03-16
    Read More
  • 501
    [건강계보험] 2기 건강계 보험 회칙
    빈고
    2016-03-04
    Read More
  • 500
    [빈고건강계 보험] 20160227 2차 오프모임 회의록
    곰자
    2016-03-03
    Read More
  • 499
    새 빈고 선언문이 나왔습니다.
    빈고
    2016-03-01
    Read More
  • 498
    [빈고건강계] 2016년 1월 17일 1차 모임의 기록 정리
    빈고
    2016-02-26
    Read More
  • 497
    [빈고 건강계보험] 2015년 3월 ~ 2016년 2월까지 1기 평가
    빈고
    2016-02-25
    Read More
  • 496
    [2월 21일] 카페해방촌 빈가게 - 마지막 정리하는 날!
    빈가게
    2016-02-20
    Read More
  • 495
    총회 사전 자료집입니다.
    빈고
    2016-02-19
    Read More
  • 494
    3월 5일(토), 공동체은행 빈고의 2016년 총회가 열립니다!
    빈고
    2016-02-15
    Read More
  • 493
    헤어드라이기가 필요한데 물물교환 제안해봅니다! 2
    김기민
    2016-02-14
    Read More
  • 492
    160211 4차 총회준비회의
    빈고
    2016-02-12
    Read More
  • 491
    160202 3차 총회준비 회의
    빈고
    2016-02-12
    Read More
  • 490
    뒤늦은 공유, 혼양의 추모공연 1
    좌인
    2016-02-12
    Read More
  • 공동체주택 설계 수정안 열람 중
    지음
    2016-02-04
    Read More
  • 488
    저소비계모임 인사드립니다 :) 2
    김기민
    2016-01-29
    Read More

  • 전화  010-3058-1968 계좌  기업은행 010-3058-1968 (예금주 : 빈고) 이메일  bingobank.org@gmail.com
Top